京澜誉府北京装修老房翻新
来源: 时间:2023年06月26日 11:01
案例详情 简约并不是缺乏设计要素,而是让所有的细节方面看上去都是非常简洁的。现代风格也是更加注重实用性以及功能性,同时还要更加的精致,体现一种精致的生活态度。
通过灯光的修饰使空间简约时尚又充满氛围感,电视背景墙利用白色系材质与原木色堆叠出来的层次感,让空间简约又不显单调电视背景墙做内嵌式处理,整体感觉温暖大气。
客厅极简柔软方块沙发,搭配高低错落的茶几,线形灯设计,点缀绿植烂,宁静温柔有质感的空间,整体感觉温暖,大气。
餐厅空间延续了简约风格,白色大理石台面,配上木质桌椅,在搭上一些配饰点缀,根据色彩与材料质感之间的相互碰撞,显得整体富有层次与高级感。
卧室以暖色调统一,无主灯设计,温馨的光线氛围,无过多的装饰设计,简单的线条搭配几何造型,勾勒出清爽,简约舒适的空间。
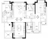
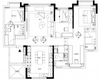
该户型为三室两厅一厨一卫,根据业主实际需求进行设计,设计了鞋柜,进门后换鞋方便,同时设计了门厅区,进门也是一道景,厨房设计了 U 型橱柜,使用方便,卫生间都做了干湿分离,客餐厅看起来宽敞明亮,功能分区明显。
相关知识
京澜誉府-现代简约-101㎡
北京金府大院老房翻新
欧陆经典老房翻新北京装修
玉桥西里老房翻新北京装修
一站式彻底解决老房隐患,全包圆老房翻新匠心打造
水郡长安老房翻新美式装修
美林花园老房翻新
兰州一中对面老房翻新,兰州云时代集成墙面才是装修高手
紫金长安现代简约老房翻新
和泰园现代简约老房翻新
网址: 京澜誉府北京装修老房翻新 http://www.jiajubaike.cn/newsview93544.html
推荐即时动态
- 1自建房造价多少钱一平米 2 24995
- 2重磅出击▏欧嘉全屋定制荣获“ 17289
- 3属鼠和属兔的合不合 属鼠的和 16417
- 4大角鹿瓷砖 8438
- 5天天315,品质365!看联 6230
- 6卢森地板2022新品触感系列 6182
- 7骊住水科技第四届进博会访谈实 5710
- 8爱情数字代表的意思大全 恋爱 5696
- 9属鸡男与属鼠女相配吗 属鸡男 5035
- 10世外康养 设计中国度假式居家 4896
即时动态热点排名
即时动态热点
